Casa de Alto Padrão – Parque Ibirá, Pouso Alegre (MG)

Resumo Sobre o Projeto

Cód:. 00056

Em um terreno de 400m², esta residência de 265m² em dois pavimentos traduz o melhor da arquitetura contemporânea.

A fachada imponente com volumetria limpa e painel de vidro antecipa interiores iluminados e funcionais. No térreo, salas integradas com pé-direito duplo se conectam à área gourmet e à piscina, criando um ambiente fluido e acolhedor. No pavimento superior, a suíte master com closet e sacada, junto a dormitórios confortáveis, reforça o equilíbrio entre elegância e bem-estar.

Um projeto Portiz pensado para quem valoriza exclusividade e design atemporal.

Informações sobre o Projeto

Itens Incluídos

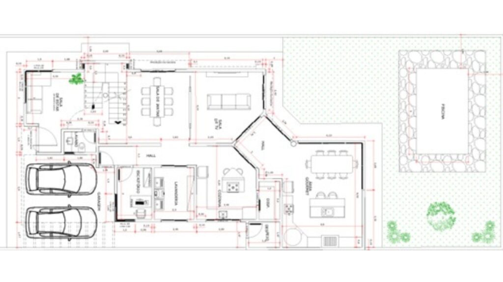
Planta do
Projeto

Visite
Nossa Empresa

De segunda a sexta
das 08 às 18h
Pouso Alegre/MG

Gostou o Projeto?
Fale conosco ↓

Cada projeto da Portiz une eficiência, praticidade e mobilidade, criando espaços que valorizam a convivência.